湖南省大学生研究性学习和创新性实验计划
项 目 申 报 表
项目名称:
如果您无法在线浏览此 PDF 文件,则可以
下载免费小巧的 福昕(Foxit) PDF 阅读器,安装后即可在线浏览 或
下载免费的 Adobe Reader PDF 阅读器,安装后即可在线浏览 或
下载此 PDF 文件
|
学校名称
|
云顶国际vip8866
|
学生姓名
|
学 号
|
专 业
|
性 别
|
入 学 年 份
|
隗如意
|
201408020229
|
道路工程卓越
|
男
|
2014年9月
|
杨卓栋
|
201410010205
|
道路工程卓越
|
男
|
2014年9月
|
范海山
|
201410010121
|
道路工程卓越
|
男
|
2014年9月
|
曹壁辉
|
201430010108
|
道路工程卓越
|
女
|
2014年9月
|
|
|
|
|
|
指导教师
|
冯新军
|
职称
|
教授
|
项目所属
一级学科
|
交通运输工程
|
项目科类(理科/文科)
|
理科
|
学生曾经参与科研的情况
(1)项目组成员获国家实用新型专利授权1项(CN201620264297),申请国家发明专利1项(申请号:201710107157.8),申请国家实用新型专利1项(申请号:201720026673.3);
(2)项目组成员在第四届全国高校土木工程专业大学生论坛论文交流中,《公路下伏溶洞路基填筑技术研究》荣获优秀奖;
(3)项目组成员组成合理,成员参与过多个科技项目及赛事,熟悉了科研工作流程,曾获得云顶国际vip8866校级科技立项3项、院级1项并已顺利结题,曾获“交通·未来”全国大学生创意作品大赛校级二等奖、三等奖各1项,曾参与创新创业活动并获湖南省第二届“互联网+”大学生创新创业大赛银奖和长沙市第十三届大学生科技创新创业大赛三等奖;
(4)项目子课题“一种基于太阳能路面的交通信号互联控制系统”获第十二届全国大学生交通科技大赛校级一等奖并入围国赛;
(5)申请项目依托“公路养护技术国家工程实验室”,以及教育部、交通部和湖南省多个研究平台基地,项目组成员假期在其实习,熟悉了本项目研究需要的全部仪器设备的使用,为本项目的开展奠定了坚实基础。
|
指导教师承担科研课题情况
(1)国家自然科学基金项目.酸雨对沥青路面的侵蚀破坏机理研究.
(2)湖南省自然科学基金项目.氯盐类融雪剂对沥青路面的侵蚀破坏机理研究.
(3)湖南省交通厅项目.改性沥青中SBS 含量的检测方法及成套技术研究.
(3)湖南省教育厅项目.基于抗车辙、抗开裂和抗水损的沥青混合料平衡设计研究.
(4)浙江省交通厅项目.大粒径碎石柔性基层在旧水泥路面改建中的运用技术.
(5)浙江省交通厅项目.旧水泥路面沥青加铺层的抗裂防水粘层技术研究.
(6)浙江省交通厅项目.干线公路新老路面结合部处治技术研究.
|
项目研究和实验的目的、内容和要解决的主要问题
1.1项目研究和实验的目的
随着全球石油能源紧缺、交通环境污染的日益严重,开发利用再生能源已成为交通行业迫切的需要。太阳能以其节能、清洁、来源广泛等特点,成为目前新能源中备受重视的一种绿色能源。另一方面,我国道路的总里程已达到457.73万公里,高居世界第二位。有研究学者指出,若国内全部道路用于太阳能路面发电,每年可以产生18065亿千瓦时的电能,约占2015年全国总发电量的32.5%左右。2016年5月,交通运输部发布《交通运输节能环保“十三五”发展规划》,指出要优化交通运输能源消费结构,加大新能源和清洁能源在城市公共交通和客货运输领域的应用,鼓励太阳能、风能等清洁能源及配套设施在交通基础建设运营中的应用。同年12月,国家能源局印发了《太阳能发展“十三五”规划的通知》。根据规划,到2020年底,光伏发电装机达到1.05亿千瓦以上,集热面积达到8亿平方米,实现年发电量1500亿千瓦时。
路面光伏发电是利用道路路面作为载体,太阳能电池阵列埋入道路结构中,穿过透明路面的光线经过太阳能电板转换为电能,从而实现光伏发电。目前实现路面透明的方式一共有两种:其一是采用钢化玻璃作为路面材料;其二是利用预制光纤透明混凝土模块铺装路面。两种方法都能满足路面光伏发电的光照要求。然而,就目前国外利用钢化玻璃作为路面的试验路段来计算,每公里车道的造价为175万美元,约合人民币1100万元。另一方面,利用预制光纤透明混凝土模块铺筑路面虽可节省工程费用,然而因其有较为复杂的施工过程,导致施工工期延缓。路面光伏发电也因为造价和施工要求等原因,成为了阻碍其发展和推广应用的重要因素。
本研究小组就目前透明混凝土现有问题提出了一种透明树脂混凝土的新型材料。它是以合成树脂(聚合物)或单体作为胶凝材料并配以相应固化剂,以玻璃颗粒、石料为骨料制成的一种聚合物混凝土,与水泥或沥青混凝土相比,透明树脂混凝土中的树脂组分能全部参与固化反应而生成致密的微观结构,因此这种混凝土具有良好透光性能的同时还具有较好的力学性能和路用性能。
通过研究,提出一种透明树脂混凝土的多功能复合材料,该材料既满足路面光伏发电的光照要求的同时也具有优良的路用性能,实现同比钢化玻璃路面降低80%的工程造价,同时大幅度简化光伏发电道路铺筑过程的施工流程,可为透明树脂混凝土的设计提供相应的技术参考,对于推进路面光伏发电的发展和应用有着重要意义。通过研究影响透明树脂的路用性能的因素,提出一套系统的配合比设计方法以及施工工艺流程,满足路面光伏发电道路施工的实际需求,实现太阳能的高效利用。
1.2项目研究和试验的内容
通过对比试验,不断探究影响透明树脂混凝土透光性能、力学性能和路用性能的主要因素,提出一套配合比设计方案和配套施工工艺,
1.2.1级配设计
级配设计主要参考目前现有的多种沥青矿料级配设计规范,并根据试验结果进行相应的改良优化。参考的级配有:密级配沥青混凝土混合料矿料级配、SMA混合料矿料级配和OGFC混合料矿料级配。
考虑到孔隙率对透光性能结果的影响,试验选用单一粒径、AC-13沥青混凝土混合料矿料级配、SMA-13混合料矿料级配和OGFC-13混合料矿料级配作为试验级配。根据透光性需要,集料的级配设计中去除了小于4.75mm粒径规格的集料,通过透光性能、力学性能和路用性能的比较提出透明树脂混凝土合适的级配设计范围。其具体级配设计如下:
类比AC-13级配设计(以下简称AC-13):
|
规格(mm)
|
13.2
|
9.5
|
4.75
|
|
|
|
质量份
|
158.1
|
543.1
|
678.6
|
|
|
|
类比SMA-13级配设计(以下简称SMA-13):
规格(mm)
|
13.2
|
9.5
|
4.75
|
质量份
|
102.6
|
614.2
|
671.3
|
类比OGFC-13级配设计(以下简称OGFC-13):
规格(mm)
|
13.2
|
9.5
|
4.75
|
质量份
|
94.4
|
436.2
|
858.4
|
单一粒径设计:9.5mm-13.2mm的均匀粒径
1.2.2性能研究
透明树脂混凝土的性能研究是以透光性能为重点,同时结合施工工艺和路用性能进行试验研究。其中,透光性能的测试方案由研究小组自制的测试装置进行测试,其余试验方案参照相关规范进行。
(1)透光性能
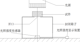
通过辐照度测试比较试件的透光效果,以透光率
描述不同条件下试件的透光能力。如图1和图2所示,该试验的试验仪器主要有自制测试箱、DT-1307CEM华盛昌太阳能测试仪、高强光源。整个测试箱除上部和右侧开适当口径,装置为封闭不透光结构。
图1 实验装置三维示意图 图2 实验装置剖面图
以下是试验步骤:
①将太阳能测试仪放入测试箱中,测试仪正对测试箱上方开口,打开测试仪。
②将光源中心与开口中心尽可能置于同一竖直线上,固定光源位置,一旦固定,试验中不可改变光源高度。打开光源开关,待显示器上读数稳定后记录下初始光照强度数值
(单位:Btu/(ft2·h))。
③关闭光源开关,将试件放于开口上方,同样要求试件中心与开口中心尽可能在同一竖直线上,试件放好后若观察侧面无漏光则打开光源,待显示器数值稳定后记录下光照强度值
(单位:Btu/(ft2·h))。
④重复②、③步,将试件依次进行测量,记录下每一个试件的数值。
⑤按照下式计算透光率:
为了进一步论证通过透明树脂混凝土的光线可用于太阳能电板发电,试验测试作为路面材料的透明树脂混凝土对太阳能电板功率的折损情况,以太阳能功率折损率
来描述不同条件下试件的透光能力,从而比较试件透过可用于发电的光波段的能力。如图3所示,该试验的试验仪器主要有自制测试箱、太阳能电板、节能灯泡、万用表、导线。整个测试箱同辐照度测试箱。
图3 折损率试验装置三维示意图
以下是试验步骤:
①将太阳能电板放入测试箱中,使太阳能电板正对测试箱上方开口,将接入太阳能电板的导线引出测试箱外。
②将节能灯泡与量程设为毫安的万用表串联接入电路中,完成电路的连接组成电流测试电路。调整测试箱朝向和位置,使自然光尽可能垂直照射太阳能电板。待万用表上读数稳定后记录下初始电流值
(单位:mA)
③将节能灯泡与量程设为伏特的万用表并联接入电路中,完成电路的连接组成电压测试电路。调整测试箱朝向和位置,使自然光尽可能垂直照射太阳能电板。待万用表上读数稳定后记录下初始电压值
(单位:V)
④将试件放于开口上方,同样使自然光尽可能垂直照射太阳能电板,根据测试项目调整万用表量程和测试电路,待万用表上读数稳定后记录下相应的电流值
(单位:mA)或电压值
(单位:V)
⑤重复②、③、④步,将试件依次进行测量,记录下每一个试件的数值。
⑥按照下式计算折损率:
(2)力学性能
透明树脂混凝土的力学性能测试参照《公路工程沥青及沥青混合料试验规程(JTG E20-2011)》和《公路工程水泥及水泥混凝土试验规程》(JTG E30-2005)》进行,主要进行以下试验:
检测项目
|
检测方法/依据
|
抗压强度
|
水泥混凝土立方体抗压强度试验方法/T0553-2005
|
抗弯拉强度
|
水泥混凝土抗弯拉强度试验方法/T0558-2005
|
抗剪能力
|
沥青混合料抗剪强度试验/T0718-2011
|
抗水损能力
|
沥青混合料马歇尔稳定度试验/T0709-2011
沥青混合料冻融劈裂试验/T0729-2000
|
抗车辙能力
|
沥青混合料车辙试验/T0719-2011
|
(3)抗滑性能
固态树脂表面较为光滑,因此在实际应用中必须考虑透明树脂混凝土表面的抗滑性能。采用的检测方法为铺砂法和摆式仪法。铺砂法用于测量构造深度,摆式仪法用于测量表面的摩擦系数,两者均与抗滑指标有关。
①铺砂法:将已知体积的砂在路面上摊铺成圆形,然后测量圆的直径并计算出面积,将体积除以面积即可求出构造深度。
②摆式仪法:通过将底面装有一块橡胶滑块的摆锤从一定高度自由下摆,滑块与路面进行接触,并摆回到一定高度。由于摩擦阻力的存在,回摆高度越小,路面的摩擦系数就越大。
(4)抗渗性
在太阳能路面系统中,太阳能面板通常铺设于路面下层,为了保障太阳能面板的正常运行,必须严格要求透明树脂混凝土的抗渗性。为此,试验参考《公路工程沥青及沥青混合料试验规程(JTG E20-2011)》T0730-2011,通过进行沥青混凝土渗水试验确定透明树脂混凝土的渗水系数,考察其抗渗能力。
(5)抗氧化性
树脂在自然条件下和沥青一样会被逐步氧化而失去一定的性能。为此,试验参考《公路工程沥青及沥青混合料试验规程(JTG E20-2011)》T0734-2000,通过采用热拌沥青混合料加速老化方法考察透明树脂混凝土的抗氧化性,评价其长期工作下的耐久性。
(6)防眩光性能
在研究路面防眩光性能时,采用图像灰度值进行量化分析。光线经路面反射后的反射光线在感光元件上形成的图像,因不同路面反射光线的不同,形成图像的灰度值大小也不相同,灰度值越高,路面反光能力越强,路面防眩光能力也就越差。
1.3需解决的主要问题
(1)总结影响透明树脂混凝土透光性能的影响因素,进行相关性分析;
(2)提出适宜的透明树脂混凝土的配合比设计方案;
(3)总结影响透明树脂混凝土的力学性能、抗滑性能、抗渗性、抗氧化性和防眩光性能的影响因素,进行相关性分析;
(4)探究透明树脂混凝土的施工工艺,经过经济效益评价,简化施工工艺。
国内外研究现状和发展动态
2.1国内外研究现状
2.1.1 透明混凝土制备方法与性能研究
目前,国内的透明混凝土制备主要由两种形式,其一是利用在预制树脂块外浇筑水泥砂浆制备透光混凝土;其二是在固定的光纤周围浇筑水泥或沥青混凝土制备导光混凝土。它们主要存在制备工艺复杂、生产成本高、透明度低、强度不够等问题。
(1)预制树脂块法
2008年,意大利水泥集团采用特殊树脂作导光材料制备出了一种导光混凝土i.light [1],主要由不透光的水泥及具有良好光学性能的特殊树脂组成,其透明度可达10%~20%之间。2010年的上海世博会上,18m高的意大利馆大约40%的墙面采用了i.light 材料[2]。意大利水泥集团主要对其透光性能、力学性能进行测试,而对其路用性能及表征、微观结构及机理的研究还不够深入。
叶栩娜根据树脂单元植入水泥砂浆基体中的先后顺序,把制备导光树脂板单元分为“先植法”与“后植法”[3]。同时对树脂导光混凝土的力学性能和透光性能做了测试和分析,得出结论:当在树脂和水泥砂浆基体之间的界面采用界面改性剂时,构件的抗压强度有较大幅度增加。
王信刚等人进行树脂导光水泥基材料的设计[4],发现采用先预制透光树脂单元再将其植入水泥基体的方法来制备树脂导光水泥基材料,能很好的解决透光树脂的植入问题,有利于提高树脂导光水泥基材料的整体稳定性。
(2)固定光纤法
李悦等人提出了一种应用光纤平行排列法制备水泥基透光材料的方法[5]。水泥基材料包括水泥砂浆和水泥混凝土等,这些材料厚重密实不透光。该发明首先选用玻璃质多模光纤,要求光纤表面上包覆涂层,并且选择偶联剂对光纤表面进行预处理。大量的光纤束以平行排列的方式埋入水泥基体材料中,且方向与光线透射方向一致。
郭慧利用水泥基透光材料制备透光混凝土[6]。水泥基透光材料(LTCM)是一种全新的透光材料,大量的光纤以一定空间排列组合方式埋入水泥基体材料中,并作为传输光线的导体以实现水泥混凝土材料透光传像等特殊效果。
周智等人[7]结合透明混凝土的透光性能实验,利用 ZEMAX对透明混凝土透光实验进行仿真模拟,建立了用于预测光纤透光效能的评估预测模型,通过分析总结出透明混凝土的透光性能评价指标和计算方法以及透光率与光纤类型和空间分布的关系,并得出结论,透明混凝土的透光性能与光纤排布密度、光纤的特性以及试块端面的抛光程度有关,透光率与光纤间距是单调递减的指数函数关系,与光纤半径是单调递增的指数函数关系。
2.1.2废弃玻璃碎石作为混凝土骨料的研究
玻璃因为其独特的性能在国民经济中广泛使用,使得废弃玻璃大量增加。国内外众多学者对废弃玻璃应用于混凝土进行了大量的研究。
朱惠英、Ewan A Byar试验验证了废旧玻璃混凝土的可行性以及无危害性[8];Perkins研究了废弃玻璃砂代替天然砂混凝土的特性[9],研究表明,废弃玻璃砂减少了混凝土的工作性能,其新拌混凝土的流动性受到了一定的控制,但能满足混凝土的使用要求,而且100%可以代替天然细骨料。在强度方面,玻璃砂作为细骨料使用,配制的混凝土具有与天然骨料一样的很好的强度。M.Tuncan等研究显示,废弃玻璃添加15%到混凝土中,能增加混凝土的抗压强度13%,其混凝土抗拉劈裂强度增加 6%,但混凝土抗折强度降低[10]。
从上述可以看出,我国对于废弃玻璃混凝土的研究还处于简单的起步阶段,缺乏系统的研究。国外虽然研究比较多,但基本上也是基本性能的研究,而且众多研究学者所获得的结论有所不同。对废弃玻璃骨料混凝土的微观结构、应力-应变关系、耐久性等基本上没有涉及。
2.2发展动态
从现有的实验研究与实际应用可以看出,目前应用的透明混凝土都存在着制备工艺复杂、生产成本高、透明度低、强度不够等问题,而另一方面,随着社会不断发展,我国大型基础设施建设规模空前,天然集料将日益短缺。与此同时,废旧玻璃数量日益增加,用废弃玻璃替代天然集料来配制混凝土既能满足基础工程的实际需要,也符合可持续发展的宏观经济战略。未来对废弃玻璃的研究将从一些关键问题出发,如废弃玻璃骨料的界面特性、掺入量对应力-应变关系的影响,本构关系、微观结构以及耐久性等,解决这些关键技术问题,对废弃玻璃用于混凝土中具有理论意义和实际价值。
本项目研究的透明树脂混凝土可作为太阳能光伏发电路面透明面层,在满足路面光伏发电的光照要求的同时做到节能环保、绿色经济。随着对透明树脂、废弃玻璃骨料等研究的进一步深入,研发一种以合成树脂作为胶凝材料,以废弃玻璃、石料作为骨料而组成的透明树脂混凝土将成为光伏发电的新方向。
参考文献
[1]左永强.硫铝酸盐水泥超早强外加剂的制备及其应用研究[D].湖南大学,2010.
[2]佚名.意大利推出透明水泥筑成墙体可透光[J].广西城镇建设,2011,1(1):110-110.
[3] 叶栩娜.树脂导光混凝土的制备方法与力学性能研究[D].南昌大学,2014.
[4] 王信刚.树脂导光水泥基材料的设计与制备表征[J].南昌大学学报,2014,38(1):41-44.
[5]李悦,许志远,李战国,等.应用光纤平行排列法制备水泥基透光材料的方法,CN102166779A[P].2011.
[6]郭慧.新型水泥基透光材料的制备与性能研究[D].北京工业大学,2014.
[7]周智,申娟,焦思雨,等.透明混凝土的透光性能研究[J].功能材料,2016,47(12).
[8] 朱惠英,Ewan,Byar.利用废弃玻璃研制高附加值预制混凝土产品[J].混凝土,2005,8(8):33-39.
[9] Perkins G D.Development of Concrete Containing Waste Glass [J].University of Glamorgan,2008:78-80.
[10] Tuncan M,Karasu B,Yalcin M.The Suitability for Using Glass and Fly Ash in Portland Cement Concrete[C]// The International Society of Offshore and Polar Engineers.2001:146-152.
|
本项目学生有关的研究积累和已取得的成绩
3.1树脂固化时间
为了提出透明树脂混凝土的施工工艺,利用Barcol硬度计对不饱和聚酯树脂的固化时间进行了研究。所谓Bacrol硬度的数值,它是以硬度计上金属针插入固化树脂表面的深度为标志的,以金属针相同的金属材料作基准。
表1 不饱和聚酯树脂的Barcol硬度随固化时间的变化(室温下)
|
养生时间
|
2小时
|
10小时
|
1天
|
|
|
|
Barcol硬度
|
1
|
12
|
42
|
|
|
|
养生时间
|
2天
|
7天
|
14天
|
|
|
|
Barcol硬度
|
47
|
49
|
49
|
|
|
|
从上述结果可以看出,树脂室温下固化2天后其硬度已经基本形成,室温固化7天后硬度已趋于稳定,可以认为树脂已经完全固化,对特定应用能提供合适物理性能和化学性能。因此,透明树脂混凝土合适的施工周期为2天。
3.2透光性能
通过辐照度测试比较试件的透光效果,以透光率
描述不同条件下试件的透光能力。并进一步论证透过透明树脂混凝土的光线可用于太阳能电板发电,以太阳能功率折损率来描述不同条件下试件的透光能力,从而比较试件透过可用于发电的光波段的能力。
表2 不同级配的透明树脂混凝土的太阳能功率折损率
试件
|
AC-13
|
SMA-13
|
OGFC-13
|
透光率(%)
|
15.62
|
28.24
|
20.00
|
折损率(%)
|
74.52
|
41.71
|
39.77
|
试件
|
纯树脂
|
9.5-13.2均匀粒径
|
透光率(%)
|
86.26
|
21.18
|
折损率(%)
|
22.10
|
40.02
|
从上述结果可以看出,在自然光照条件下,纯树脂的透光率最高,可以达到86.26%,其所对应的折损率为22.1%。SMA-13试件虽然相较OGFC-13试件具有更高的透光率,然而SMA-13试件比OGFC-13有更高的折损率,说明透光率仍然不能直接作为评价太阳能路面光伏发电效率的参数。当考虑房间墙体采光能力时可考虑透光率作为评价指标,当考虑光伏发电效率时必须考虑太阳能电板的功率折损率。
3.3力学性能
根据树脂的固化特点,项目制定了透明树脂混凝土的制备方法,其具体制备方法如下:
(1)在树脂中先加入适量的促进剂搅拌1~2分钟至促进剂与树脂充分拌匀,再加入适量固化剂搅拌1~2分钟充分拌匀;
(2)将玻璃颗粒加入上述混合罐中,混合搅拌2~3分钟;
(3)在模具中涂上树脂脱模剂,将混合罐中的混合料出料浇筑,在固化过程中用钢尺刮平或整平试件表面,在20℃环境温度下养生待强7天,待树脂固化成型后用树脂脱膜剂再次冲洗试件表面。
按照上述方法参照《普通混凝土力学性能试验方法标准(GB/T50081-2002)》制作试件,在20℃环境温度下养生待强7天,进行抗压强度试验,抗压强度试件为100mm×100mm×100mm立方体。
表3 不同级配的透明树脂混凝土的抗压强度
试件
|
AC-13
|
SMA-13
|
OGFC-13
|
抗压强度(MPa)
|
9.48
|
12.32
|
12.32
|
试件
|
纯树脂
|
9.5-13.2均匀粒径
|
抗压强度(MPa)
|
89.99
|
20.50
|
从上述结果可以看出,树脂是一种高强的半刚性材料,其性质介于水泥与沥青之间,其抗压强度可达89.99MPa。另外,类比AC-13、SMA-13、OGFC-13三种级配所制作的试件的抗压强度相差不大,即该三种形式的级配组合对试件的抗压强度影响较小。均匀粒径可以有效提升试件的抗压强度,在条件允许的情况下,应考虑采用均匀粒径作为透明树脂混凝土级配设计。
3.4集料设计
为了进一步考虑集料对透明树脂混凝土透光率、折损率和抗压强度的影响。试验考虑利用部分石料替代玻璃的形式比较石料和玻璃颗粒对混凝土性能的影响。
表4 不同级配情况下石料部分替代玻璃颗粒的混凝土性能
试件
|
透光率(%)
|
折损率(%)
|
抗压强度(MPa)
|
AC-2b1s
|
10.08
|
75.21
|
11.22
|
AC-2s1b
|
5.6
|
91.07
|
11.44
|
SMA-2b1s
|
18.02
|
45.82
|
13.09
|
SMA-2s1b
|
7.66
|
67.81
|
14.73
|
注:2s1b指16mm-9.5mm粒径的石料与9.5mm-4.75mm玻璃颗粒组成而成的级配;2b1s指16mm-13.2mm粒径的石料与13.2mm-4.75mm玻璃颗粒组成的级配。
从上述结果可以看出,透明树脂混凝土集料中加入少量石料仍然可以满足太阳能电板所需的光照要求,并且当石料所占比重越大时,透光率越小,太阳能电板功率折损率越大,抗压强度也越大,因此施工应用时可以根据相应性能的需求,允许石料部分替换玻璃颗粒。
3.5渗水与构造深度
为了研究透明树脂混凝土对水的渗透情况以及路面粗糙度,参考《公路工程沥青及沥青混合料试验规程》T0730-2011进行了透明树脂混凝土渗水试验,参考《公路工程沥青及沥青混合料试验规程》T0731—2000进行了透明树脂混凝土表面构造深度试验。
第一个直径读数
|
100mm
|
垂直方向直径读数
|
95mm
|
平均直径
|
97.5mm
|
计算结果为
|
构造深度 TD=3.35mm
|
注:本次试验所制试件为30cm*30cm*5cm的车辙板试件,所用废弃玻璃为4.75~9.5mm的单一粒径,使用废弃玻璃6408g,使用树脂2090g,胶玻比为:0.326。
图4 渗水试验(1) 图5 渗水实验(2)
试验现象显示为水面下降了一点便保持不动。因此可以得到结论:该试件基本或根本不透水。透明树脂混凝土的隔水性优良,表面的宏观粗糙度、排水性能及抗滑性基本符合路面性能。
项目的创新点和特色
4.1选用树脂作为胶凝材料
树脂是一种透明的胶凝材料,同时与沥青相比,树脂熔点远高于沥青,用于路面可防止高温天气路面泛油,以及可解决沥青软化带来的车辙等其他路面病害。与此同时,使用树脂作为胶凝材料,可在不改变原有混凝土优良路用性能的情况下,赋予混凝土较好的透光性能。
4.2选用废弃玻璃作为透明骨料
玻璃是由二氧化硅和其他化学物质熔融在一起形成的硅酸盐类非金属材料,其具有良好的透光性能(3mm、5mm厚的镜片玻璃的可见光透射比分别为87%和84%),同时能耐酸碱腐蚀。在提高混凝土透光率的同时能够很好地提高道路的耐腐蚀性,延长道路的使用寿命。另一方面,利用废弃玻璃作为混凝土的骨料是一种废弃物再利用的环保工艺,在不影响混凝土本身性能的同时解决了资料利用率不高的问题。
4.3施工简单
传统已有的透光混凝土多为预制的,本项目使用直接拌和的方法制备透明树脂混凝土,使得其制备设备与传统的水泥混凝土相同,节约经济成本,施工简单。同时本项目研制的透明树脂混凝土可运用于道路施工,为未来道路性能、功能的发展打下基础。
|
项目的技术路线及预期成果
5.1技术路线
采用理论分析与室内试验相结合、数值模拟与效能评价并行的研究方法,提出一种透明树脂混凝土的配合比设计及试验研究方案。系统开展透明树脂混凝土最优级配设计、集料选择,着重研究废旧玻璃作为透明骨料对透明树脂混凝土透光性能、力学性能和路用性能的影响。技术路线见下图:
5.2预期成果
(1)提出一种新型透明树脂混凝土的配合比设计方案,实现同比钢化玻璃路面降低80%的工程造价;
(2)提出相配套的施工工艺,大幅简化光伏发电道路铺筑的施工流程;
(3)发表学术论文1~2篇,申请国家专利2~3项;
(4)得到课题调研与试验分析报告、课题总体工作报告和研究报告。
|
年度目标和工作内容(分年度写)
项目研究(2016年11月1日-2018年4月31日)
|
研究进度
|
主要研究工作内容
|
|
|
|
|
|
2016.11.1-2016.12.1
|
调查国内外相关文献,了解透明混凝土的研究现状,分析现有透明混凝土设计的优缺点,归纳小组已取得的研究成果,提出一种透明树脂混凝土的设计思路。
|
|
|
|
|
|
2016.12.1-2017.4.1
|
对比研究在单一粒径、AC-13、SMA-13和OGFC-13三种不同级配情况下透明树脂混凝土的透光性能,在满足力学性能的基础上,确定合适的级配设计方案。撰写总结分析报告1~2篇。
|
|
|
|
|
|
2017.4.1-2017.7.1
|
比较集料为玻璃颗粒或石料部分替代玻璃颗粒对透明树脂混凝土力学性能的影响。撰写总结分析报告1篇。
|
|
|
|
|
|
2017.7.1-2017.12.1
|
测试透明树脂混凝土抗滑性能、抗渗性、抗氧化性和防眩光性能,评价其路用性能。撰写总结分析报告1~2篇。
|
|
|
|
|
|
2017.12.1-2018.3.1
|
提出透明树脂混凝土的施工工艺流程,对其进行经济效益评价。撰写学术论文1~2篇。
|
|
|
|
|
|
2018.3.1-2018.4.31
|
研究总结,撰写总结报告,进行项目结题与鉴定。
|
|
|
|
|
|
指导教师意见
本项目以废旧玻璃、石料为集料,以透明树脂为胶凝材料,开发新型拌和式透明树脂混凝土,并以此作为路面材料及太阳能电池板的透光基体研发新型太阳能路面,可以有效解决目前太阳能路面造价高昂、施工工艺复杂等问题,研究工作具有显著的经济社会效益。项目制定的实施方案翔实,技术路线合理,创新点突出,预期成果丰硕,应用前景广阔。同意并支持该项目的立项申请。项目立项后,将提供一切便利条件保证项目的顺利实施。
签字: 日期:
|
注:本表栏空不够可另附纸张